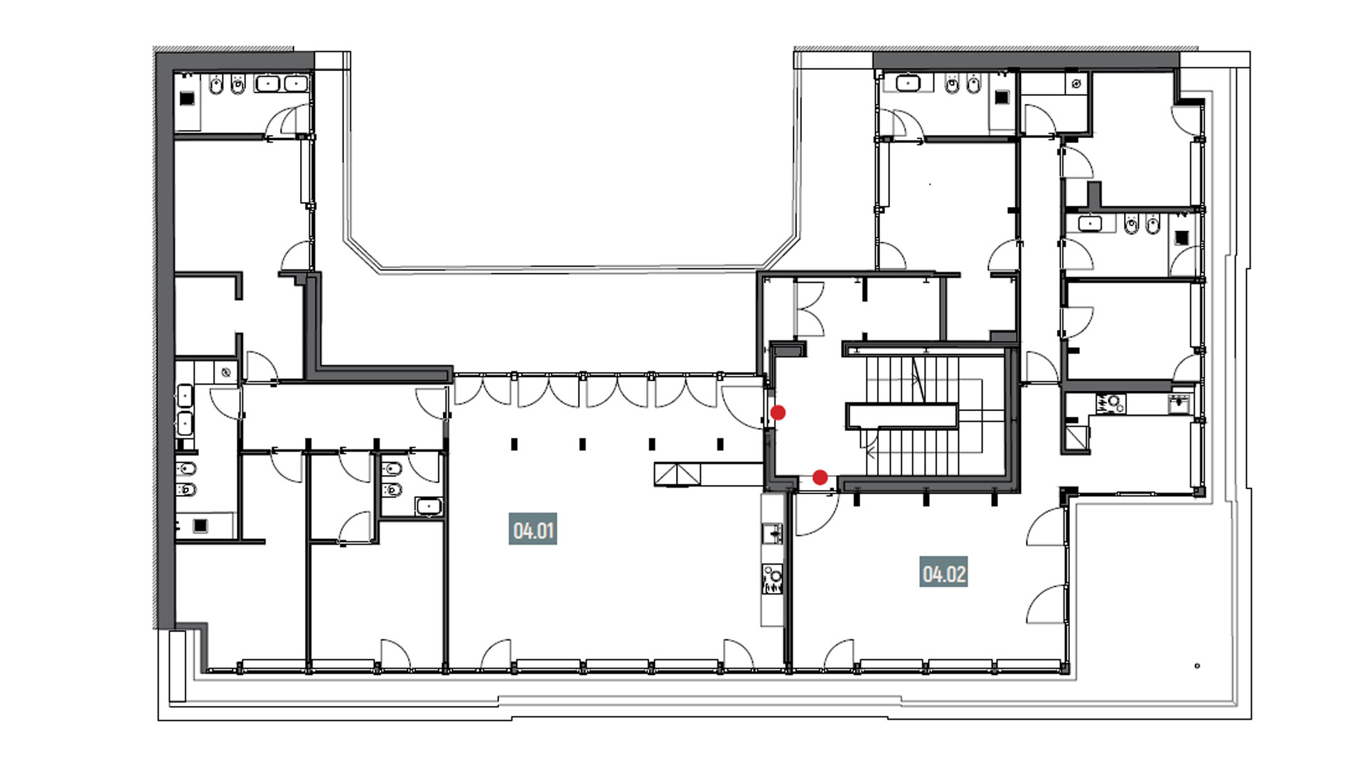
Quarto piano
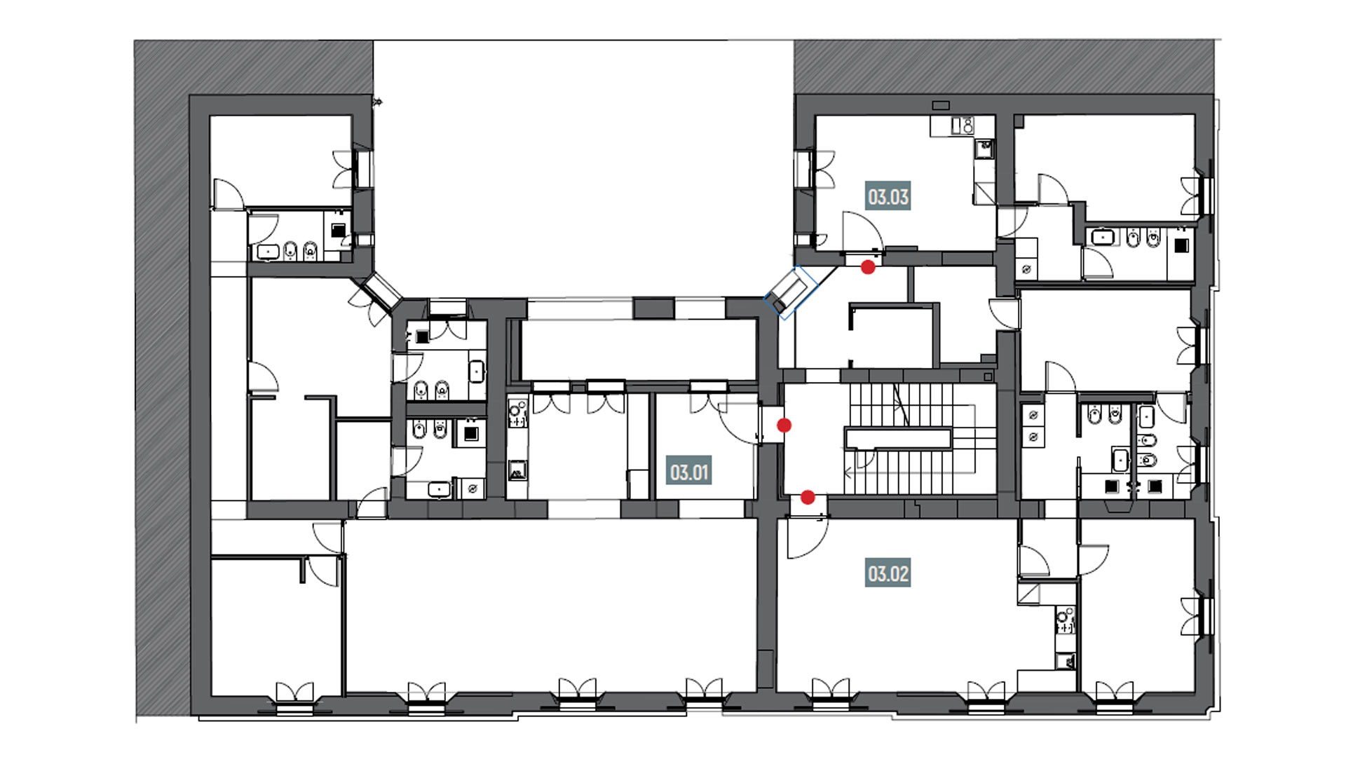
Terzo piano
Secondo piano
Primo piano
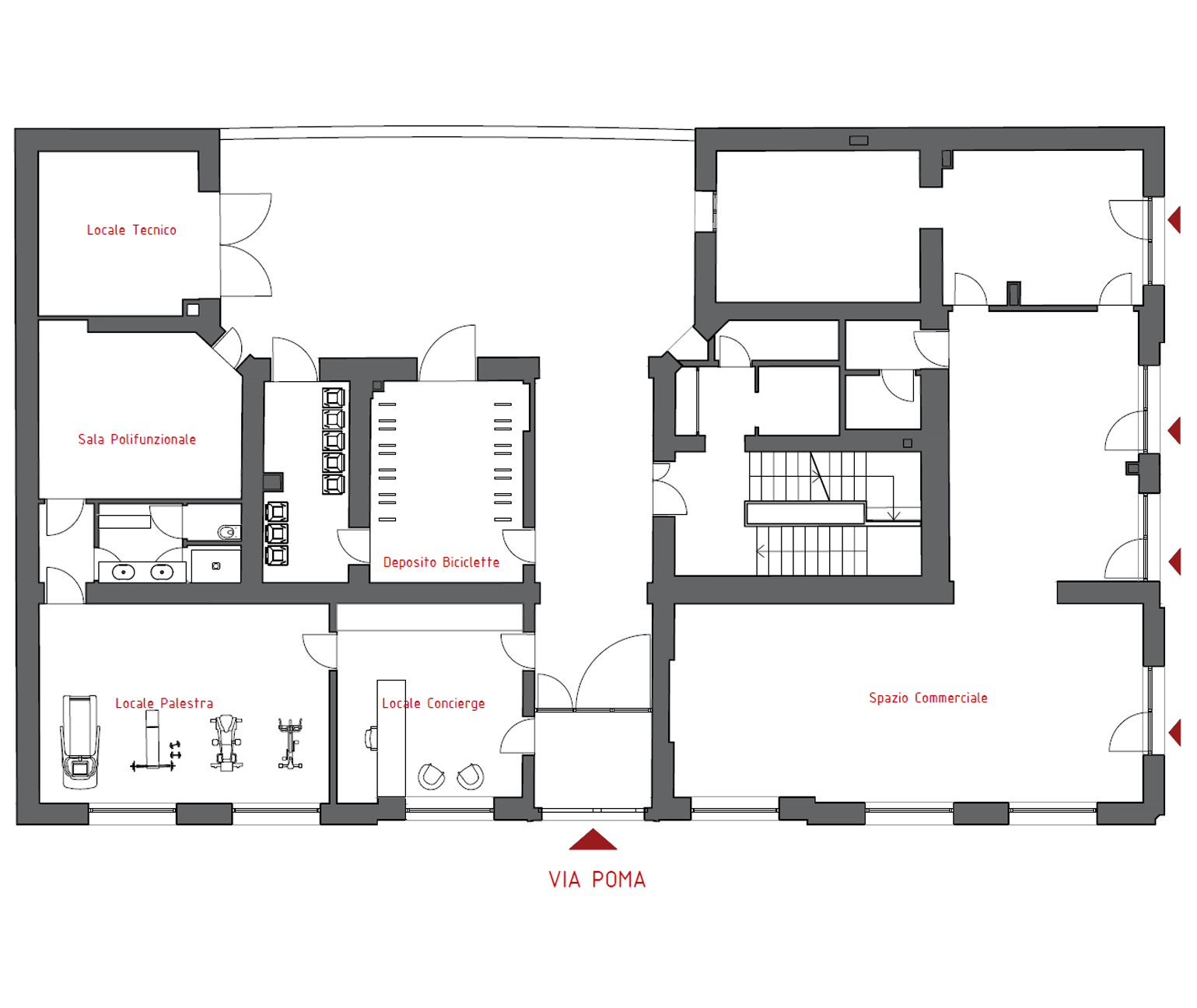
Piano terra
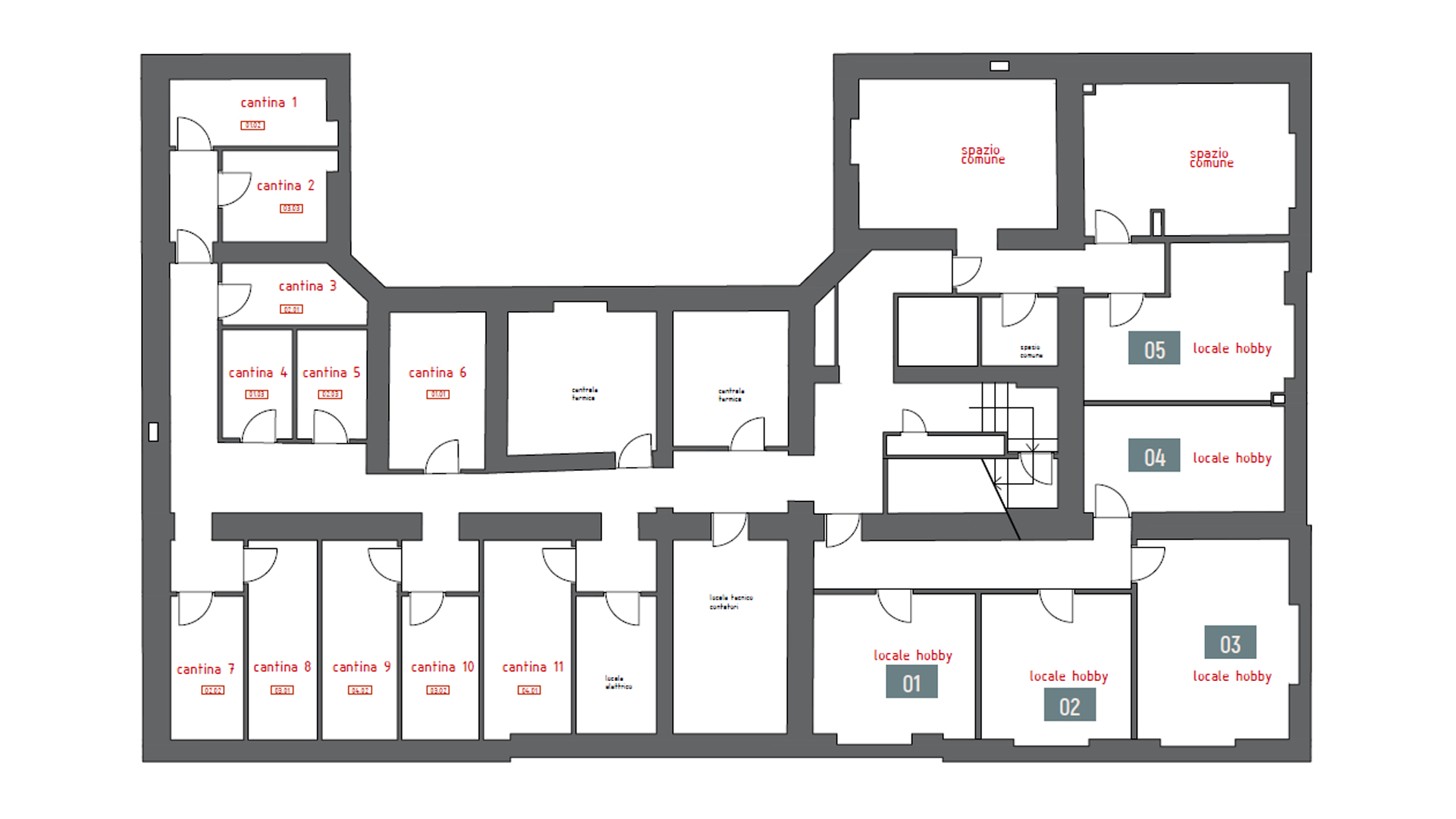
Piano Interrato
Fullscreen Overlay
Visualizza le planimetrie